Entwürfe...

P U L T D A C H 

Pultdachhaus mit Schwimmbadanbau und darüber liegender Dachterrasse... 
 


K U B U S 

Einfamilienhaus in Nürnberg Weiherhaus...  
 


B U N G A L O W 

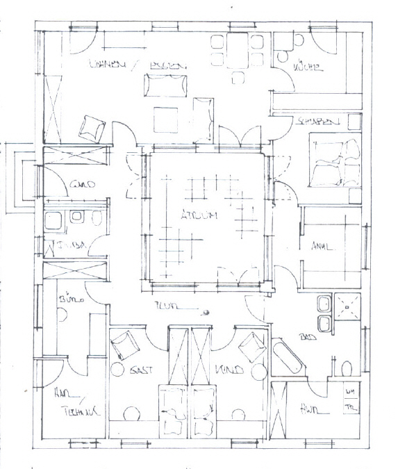
Geschäftswohnung eines Autohausbesitzers im Firmengelände als Atriumhaus...  


P U L T D A C H H A U S 

Modernes Einfamilienwohnhaus mit Vor- und Rücksprüngen, Westerschließung...  


B U N G A L O W 

Betriebswohnung einer Gärtnerei...  
   


Impressum